
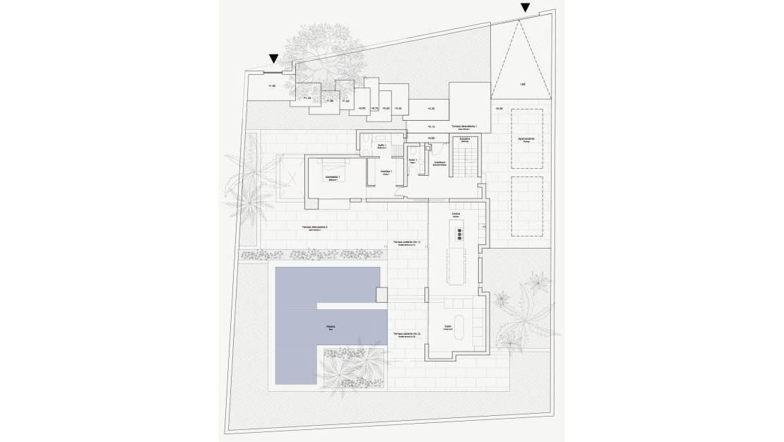
Vivienda de planta sótano, planta baja y planta primera que destaca por su apariencia contemporánea y su atención al detalle. La fachada de la vivienda está compuesta por varios cubos de diferentes tamaños y alturas, que se intercalan creando una geometría irregular. Estos cubos están cuidadosamente dispuestos para lograr una estética moderna y atractiva, al tiempo que mantienen una sensación de sutileza. Esta disposición volumétrica genera un juego de luces y sombras en la fachada el cual agrega profundidad y dinamismo a esta casa.~La parcela cuenta con un área de 800 metros cuadrados. Ubicada en una zona urbanizada recientemente con excelentes conexiones tanto con Altea como con La Nucía. El acceso rodado se realiza mediante una rampa que permite el estacionamiento exterior a cota de planta baja.~El acceso peatonal a la vivienda, a su vez, se configura mediante una escalinata que conecta el nivel de calle con el nivel de planta baja.~La elección de grandes ventanales y aberturas estratégicamente ubicadas en fachada permite la entrada de luz natural en el interior y crea una conexión visual entre el interior y el exterior. Además, estos elementos brindan vistas panorámicas del entorno circundante, aprovechando al máximo la belleza del paisaje de La Necia.~El jardín sigue la misma composición geométrica que la vivienda, lo que crea una sensación de continuidad y cohesión entre el interior y el exterior. Las texturas en el suelo, como el pavimento, la piscina y las zonas ajardinadas, se combinan de manera inteligente para realzar la geometría de la parcela. Esto crea una sensación de orden y equilibrio.~La piscina es una característica central en el diseño del jardín. Su forma irregular se relaciona con la composición de la fachada y la geometría de la vivienda en planta, lo que agrega coherencia al diseño general. Además, la piscina está estratégicamente ubicada para servir como una conexión exterior entre los diferentes niveles de la parcela y la casa.~PLANTA BAJA:~Este nivel está concebido como el nivel principal de la vivienda y alberga las estancias de día.~La entrada a la casa se realiza desde la fachada paralela a Calle San Marino, lo que permite que el recorrido de acceso sea lo más directo posible. En el hall de entrada encontramos un aseo de cortesía y la comunicación vertical, lo que permite el recorrido a los diferentes espacios de la vivienda se realicen de manera directa. Este hall, también separa la zona de día de la habitación principal con baño en-suite, situada en esta planta. La zona de día se configura como un espacio abierto y comunicado entre sí. De esta forma, la cocina-comedor se disponen en un mismo espacio, en continuidad con el salón, el cual, se entiende como un espacio diferenciado gracias a su diferencia de cota y altura. Mediante dos escalones, se accede a este espacio, que se plantea en doble altura, dotándolo de mayor presencia.~PLANTA PRIMERA~La planta primera de Casa EME se distribuye en dos habitaciones en-suite con vestidor, ambas de amaño similar. Ambas habitaciones poseen una vista directa al mar y su diseño interior se alinea con el enfoque general de la vivienda en el uso de materiales naturales y de calidad. Se presta una especial atención a los detalles, y la disposición de los muebles y la iluminación está cuidadosamente planeada para garantizar la comodidad.~Desde esta planta, se accede a una terraza exterior en la que el mobiliario exterior se plantea de obra, generando espacios integrados en la arquitectura de la vivienda que permiten disfrutar del espacio exterior con unas vistas que alcanzan desde el Puig Campana y la Serra de Bérnia hasta el mar.~
Esta información que se proporciona aquí está sujeta a errores y no forma parte de ningún contrato. La oferta se puede cambiar o retirar sin previo aviso. Los precios no incluyen los costes de compra