
Exclusivo complejo residencial de Bungalows que combina diseño contemporáneo, calidad constructiva y un entorno pensado para disfrutar del máximo confort. Ubicado en una zona tranquila y bien conectada, ofrece viviendas con acabados de primera, excelente aislamiento térmico y acústico, y un equipamiento completo.
✨ Características principales de las viviendas:
Cocinas modernas completamente amuebladas con armarios altos y bajos, fregadero empotrado, vitrocerámica y campana extractora integrada.
Instalaciones eléctricas con mecanismos tipo BTicino o similar, tomas de TV en salón y dormitorios, teléfono en salón y dormitorio principal, y preinstalación para televisión por cable y antena.
Climatización y fontanería eficientes, con extractores en baños (excepto los que cuentan con ventana).
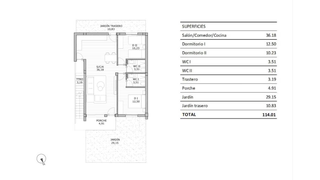
Distribución exterior según tipo de vivienda:
Planta baja: jardines privados con cerramiento perimetral en monocapa y cancela peatonal.
Planta alta: solárium privado con toma de corriente, televisión y agua.
Zonas comunes y urbanización:
Más de 1.100 m² de áreas comunes con accesos peatonales en hormigón impreso y zonas de césped.
Dos piscinas comunitarias, una de 135 m² y otra de 87 m², ideales para adultos y niños.
Amplias zonas ajardinadas y espacios pensados para la convivencia.
Recinto técnico común para telecomunicaciones (R.I.T.U.) con antenas de televisión, telefonía e internet.
Este residencial es sinónimo de tranquilidad, diseño y calidad. Ideal tanto como vivienda habitual como para disfrutar de unas vacaciones con todas las comodidades en un entorno seguro y elegante.
San Miguel de Salinas es un pintoresco municipio situado en la provincia de Alicante, en la Comunidad Valenciana, que combina encanto rural y proximidad a la costa. Ubicado cerca de la Costa Blanca, San Miguel de Salinas ofrece un ambiente tranquilo, rodeado de naturaleza y hermosos paisajes, ideal para quienes buscan una vida relajada, pero sin renunciar a la comodidad de tener playas y servicios cercanos. El municipio destaca por su carácter tradicional, con calles estrechas y casas de arquitectura típica, y por su cercanía a campos de golf, centros comerciales y restaurantes. Su excelente clima mediterráneo y su fácil acceso a localidades como Torrevieja hacen de San Miguel de Salinas un lugar atractivo para vivir o disfrutar de unas vacaciones.
Información importante sobre costes de compra
Ten en cuenta que el precio indicado no incluye impuestos ni gastos adicionales asociados a la compra de una propiedad en España. Estos son algunos puntos clave a considerar:
Como referencia general, recomendamos añadir un 15% al precio de compra para cubrir todos los costes asociados.
Reserva de propiedades
El precio de venta incluye los honorarios del agente, por lo que no hay costes adicionales al comprar a través de nuestra empresa.
Nota importante: Toda la información proporcionada es orientativa. Para obtener una estimación detallada y asesoramiento legal completo, recomendamos consultar con nuestro abogado especializado interno.
Esta información que se proporciona aquí está sujeta a errores y no forma parte de ningún contrato. La oferta se puede cambiar o retirar sin previo aviso. Los precios no incluyen los costes de compra