
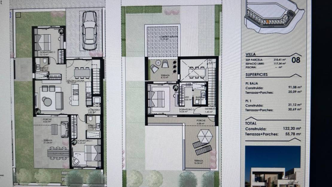
Santa Rosalia Lake & Life resort Chalet independiente modelo Sakura en una ubicación privilegiada muy cerca del Lago. Las villas están ubicadas a lo largo del lago central y se disfruta de una hermosa vista de los alrededores, con una parcela de 236 m2 y una vivienda en dos alturas de 122 m2, con 3 dormitorios, 3 baños, distribuidos de la siguiente forma en la planta baja dispone de salón-comedro con cocina con su isla, 2 dormitorios, 2 baños, lavadero, porche y su terraza, y en la planta primera 1 dormitorio, vestidor, baño y 2 terrazas, dispone de su parking privado y tiene espacio para construir su propia piscina.
Esta información que se proporciona aquí está sujeta a errores y no forma parte de ningún contrato. La oferta se puede cambiar o retirar sin previo aviso. Los precios no incluyen los costes de compra