Commercial property · Venta Alicante · Torrevieja · Playa del Cura

Ref.: RO--80635
263m2

Características

Habitaciones: 0
Baños: 0
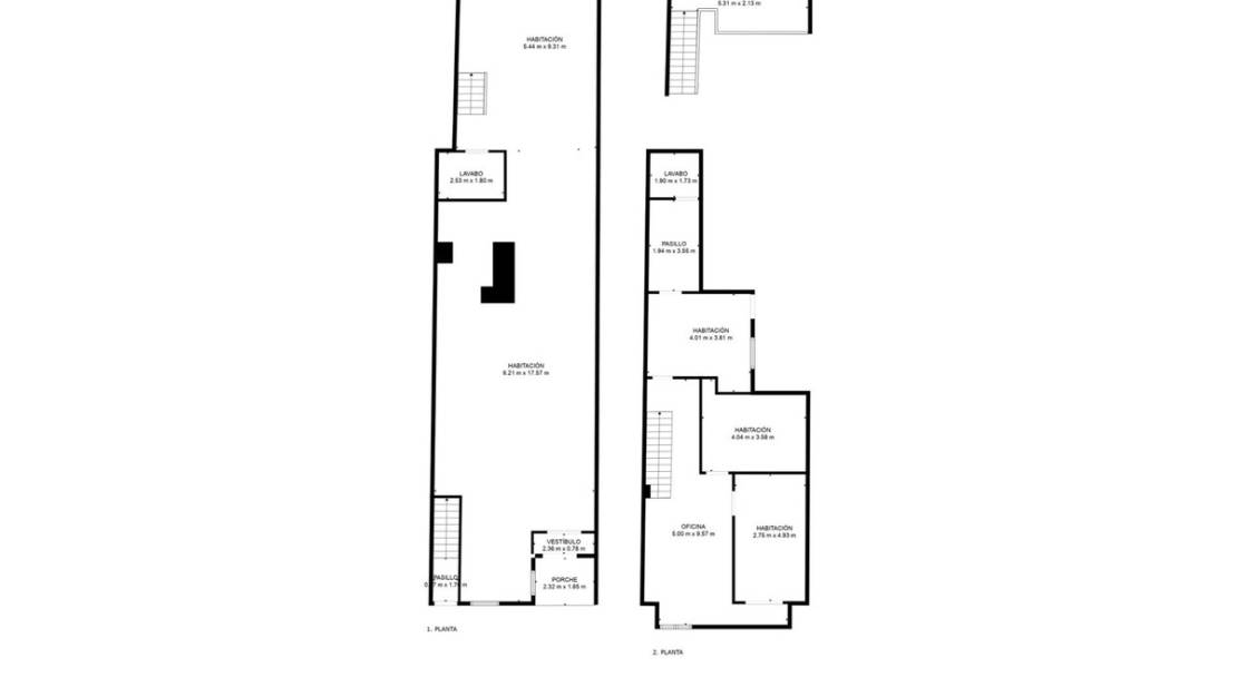
Construidos: 263m2
Calificación energética: En proceso
Features - Storage Room
Calificación energética
Calificación energética:
En proceso

Descripción

Inmueble con un enorme potencial de inversión junto al nuevo Puerto de Torrevieja, ubicado en una zona estratégica y con múltiples posibilidades de desarrollo. Ideal para reforma integral o para la construcción de nuevas plantas, este activo permite desarrollar desde un edificio turístico hasta cualquier tipo de negocio rentable, adaptándose a diferentes modelos de explotación y maximizando el retorno de la inversión.~~Ponemos a la venta un espacioso local comercial con piso en la planta superior, ubicado en Calle Ramón y Cajal, 13, junto al conocido Paseo Vistalegre. Este inmueble cuenta con 263 m2 construidos y ofrece un amplio espacio distribuido entre la planta baja, ideal para cualquier tipo de negocio, y la planta superior, perfecta para una posible área de vivienda o almacenamiento.~~Una de las grandes ventajas de este local es que cuenta con licencia de pub, lo que le añade un valor especial para aquellos interesados en abrir un negocio de hostelería o entretenimiento en una de las zonas con mayor flujo de personas de Torrevieja.~~Características destacadas:~~Ubicación privilegiada en una zona con alta afluencia peatonal.~Amplia planta baja con espacio para desarrollar múltiples conceptos comerciales.~Planta superior con potencial para habilitar como vivienda u oficina.~Licencia de pub vigente, que permite iniciar actividades de hostelería sin demoras.~Fachada de estilo único que aporta carácter y visibilidad al negocio.~Este inmueble es perfecto para aquellos que buscan un proyecto de reforma con excelente retorno de inversión, en una de las zonas más cotizadas de Torrevieja. ¡Dale nueva vida a este espacio y conviértelo en el negocio que siempre soñaste!~~Para más información o para concertar una visita, no dudes en contactarnos.

Localización

Economía

Esta información que se proporciona aquí está sujeta a errores y no forma parte de ningún contrato. La oferta se puede cambiar o retirar sin previo aviso. Los precios no incluyen los costes de compra

Calcular hipoteca

Cambio de divisas

  • Libras: 431.301 GBP
  • Rublo Ruso: 431.301 RUB
  • Franco Suizo: 456.336 CHF
  • Yuan Chino: 3.937.060 CNY
  • Dolar: 578.790 USD
  • Corona Sueca: 5.419.889 SEK
  • Corona Noruega: 5.343.043 NOK

Solicitar información

Responsable del tratamiento: Urban Coast Property, Finalidad del tratamiento: Gestión y control de los servicios ofrecidos a través de la página Web de Servicios inmobiliarios, Envío de información a traves de newsletter y otros, Legitimación: Por consentimiento, Destinatarios: No se cederan los datos, salvo para elaborar contabilidad, Derechos de las personas interesadas: Acceder, rectificar y suprimir los datos, solicitar la portabilidad de los mismos, oponerse altratamiento y solicitar la limitación de éste, Procedencia de los datos: El Propio interesado, Información Adicional: Puede consultarse la información adicional y detallada sobre protección de datos Aquí.

© 2026 Urban Coast Property · Nota legal · Privacidad · Cookies · Mapa Web · Diseño: Mediaelx