
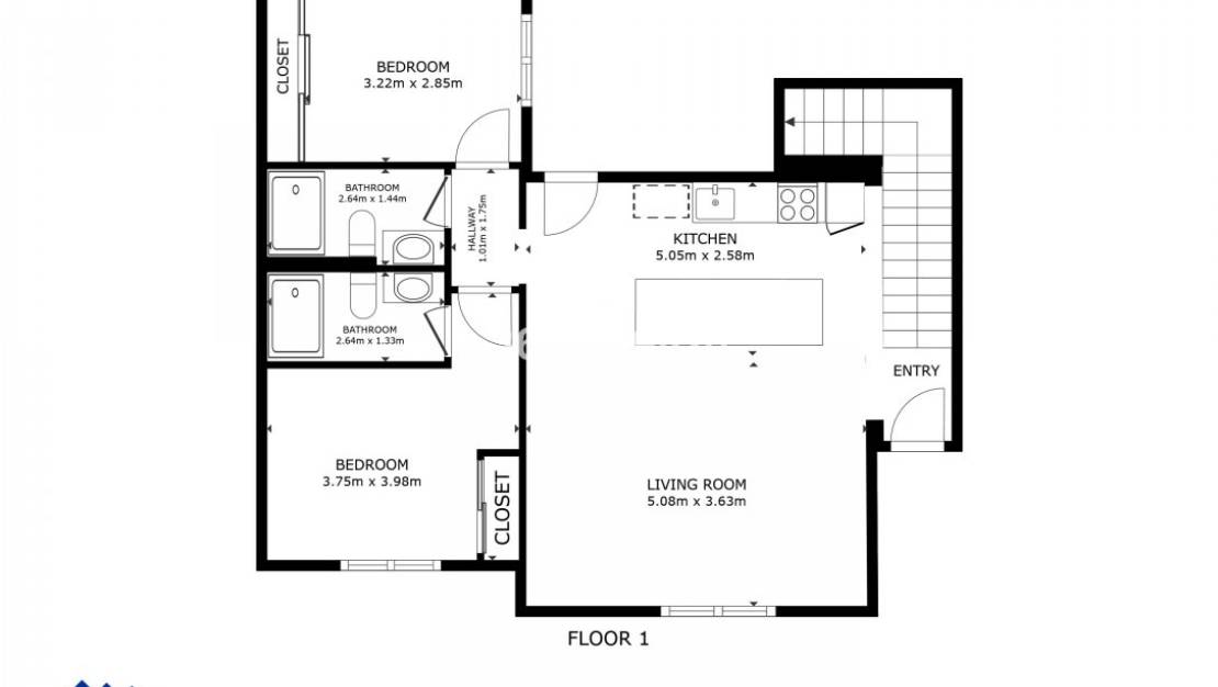
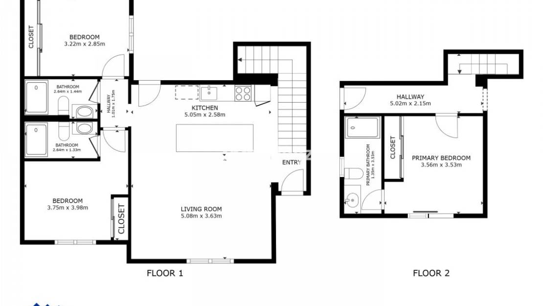
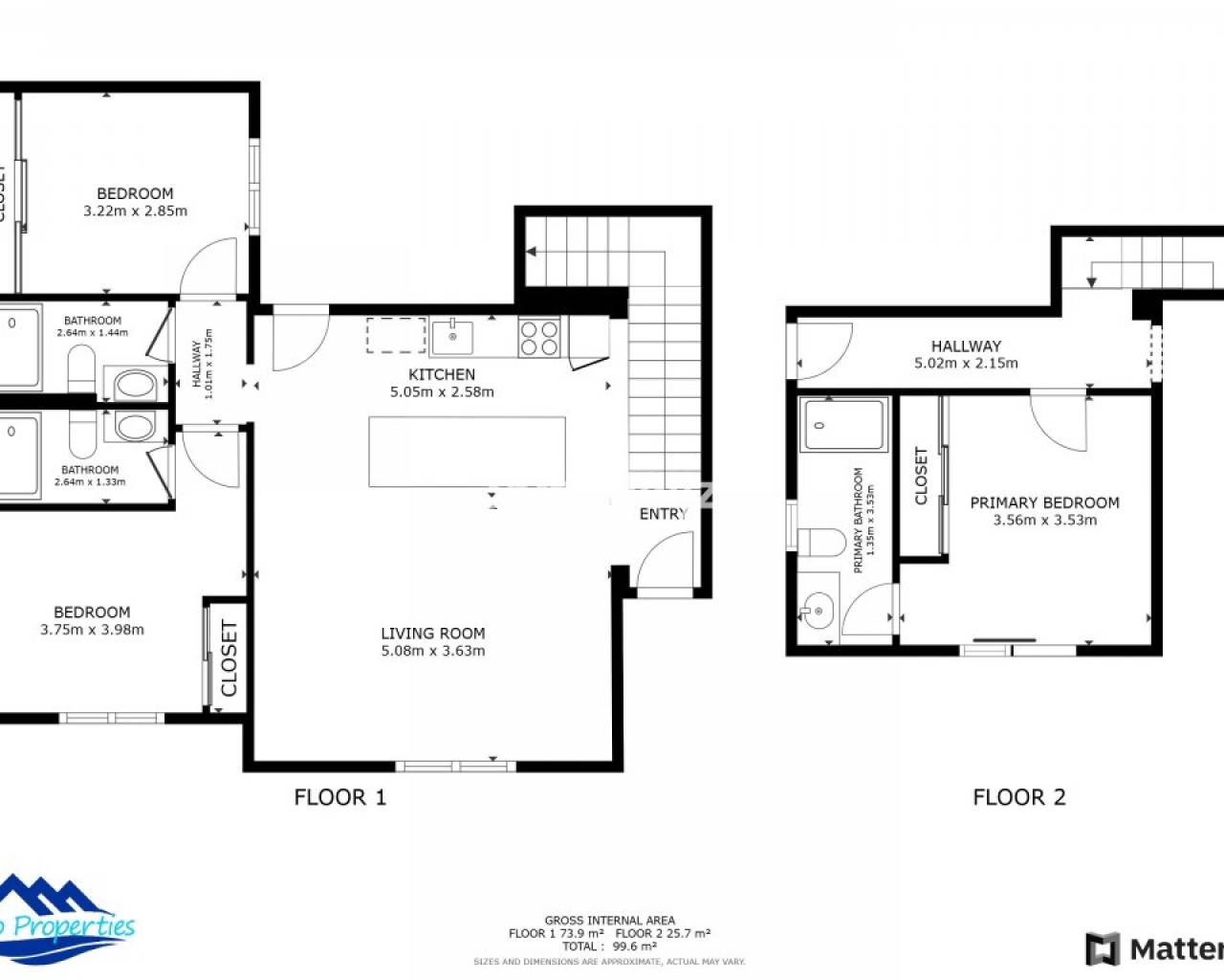
Luxury Detached Villa in Roldán Discover this stunning detached villa in Roldán, a haven of peace and comfort, ideal for permanent living or as a holiday home. Built in 2024, this modern property features 3 spacious bedrooms and 3 fully equipped bathrooms, all finished with high-quality materials and attention to detail. The villa boasts a generous outdoor space with multiple terraces, a heated private pool, and a beautifully landscaped garden. For extra sustainability and energy efficiency, 3 solar panels are installed. The open kitchen, with a central island, additional storage, and built-in appliances, offers maximum convenience. All indoor furniture is included, except for the garden furniture on the rooftop terrace. Located in a family-friendly residential area, the property offers excellent amenities such as a school and children's play areas. Additionally, a large 450 m² communal pool with a beach and restaurant will soon be available, adding even more appeal to your surroundings. The villa is only a 15-20 minute drive from the stunning beaches of the Mar Menor, making it perfect for those who love sun and sea. You also have the option to expand the property by an additional 100 m², providing even more space and comfort.
This info given here is subject to errors and do not form part of any contract. The offer can be changed or withdrawn without notice. Prices do not include purchase costs.